Skip To Content

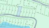
0.19 ac Hickory Hollow Rd

Crossville, TN 38572
  • $5,175
  • STATUS: Active
  • ON SITE: 97 Days
  • ID#: 1323571
UPDATED: 66 min ago
$5,175
  • 0
    BEDS
  • 0.19
    ACRES
  • 0
    BATHS
  • 0
    1/2 BATHS
Neighborhood:
Type:
Manufactured Home
County:
Area:

School Ratings & Info

Description

This lot offers endless possibilities. Bring your mobile home, tiny home, or build your own site-built retreat with a 450 sq. ft. minimum. Enjoy peaceful surroundings and community amenities, including three lakes for fishing, a sandy beach area, a boat launch, and a community pavilion. Whether you're looking for a weekend getaway or a full-time escape, this lot is a great opportunity to enjoy the quiet charm of mountain living in Cumberland County, TN. *Property does NOT have a soil map or perk test. Buyer to verify all information.

Monthly Payment Calculator



© 2026 East Tennessee REALTORS®. All rights reserved. IDX information is provided exclusively for consumers' personal, non-commercial use and may not be used for any purpose other than to identify prospective properties consumers may be interested in purchasing. Some or all of the listings displayed may not belong to Realty Executives Associates. Information is deemed reliable but is not guaranteed accurate by the MLS or Realty Executives Associates. Data last updated: 2026-03-13T17:47:47.16.
www.ashleyfinney.com/homes/171158555
Print Image

0.19 ac Hickory Hollow Rd Crossville, TN 38572

  • Price: $5,175
  • Status: Active
  • On Site: 97 Days
  • Updated: 66 min ago
  • ID#: 1323571
0
Beds
0
Baths
0
½ Baths
0.19
Acres
Neighborhood:
Cumberland Mtn Ret
County:
Cumberland
Area:
Crossville
Property Description
This lot offers endless possibilities. Bring your mobile home, tiny home, or build your own site-built retreat with a 450 sq. ft. minimum. Enjoy peaceful surroundings and community amenities, including three lakes for fishing, a sandy beach area, a boat launch, and a community pavilion. Whether you're looking for a weekend getaway or a full-time escape, this lot is a great opportunity to enjoy the quiet charm of mountain living in Cumberland County, TN. *Property does NOT have a soil map or perk test. Buyer to verify all information.
Exterior Features

Parking Features []

Property Features

Association Amenities Coin Laundry Association Fee 95 Association Fee Frequency Yearly Auction YN No Community Amenities Boat Ramp Yes Community Amenities Coin Laundry Yes Community Features [] Frontage Type [] Irregular Lot Yes Listing Terms CashConventional Lot Features RollingIrregular LotRolling Slope New Financing Cash Yes New Financing Conventional Yes Property Status N/A Property Sub Type Mobile Home Yes Property Sub Type Single Family Yes Restrictions Yes Security Features [] Utilities [] View Country SettingSeasonal Lake ViewWooded

Listing information © 2026 East Tennessee REALTORS®.
Listing provided courtesy of Wallace: 931-404-1111.


© 2026 East Tennessee REALTORS®. All rights reserved. IDX information is provided exclusively for consumers' personal, non-commercial use and may not be used for any purpose other than to identify prospective properties consumers may be interested in purchasing. Some or all of the listings displayed may not belong to Realty Executives Associates. Information is deemed reliable but is not guaranteed accurate by the MLS or Realty Executives Associates. Data last updated: 2026-03-13T17:47:47.16.
 
https://bt-photos.global.ssl.fastly.net/kaar/orig_boomver_1_1323571-2.jpg
Logo
Realty Executives Associates
10255 Kingston Pike
Knoxville TN, 37922